Commercial Kitchen Design Layout Blueprints Printing : 3d Interior Design Software Kitchen Design Software 3d Bathroom Planner / It is necessary to have a printed list of the same with you so that no item is overlooked.
Dapatkan link
Facebook
X
Pinterest
Email
Aplikasi Lainnya
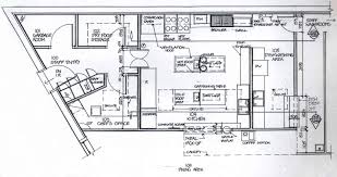
Commercial Kitchen Design Layout Blueprints Printing : 3d Interior Design Software Kitchen Design Software 3d Bathroom Planner / It is necessary to have a printed list of the same with you so that no item is overlooked.. The blueprints and drawings of the internal installations and the external dimensions have to be approved by the authorities. 25 197 просмотров 25 тыс. Additionally, if you're looking for examples of how you can lay out your kitchen, you can find some sample layouts and templates. Create electrical schematics, landscaping plans or design visuals. Our kitchen site survey will mda sanitarian.
It is necessary to have a printed list of the same with you so that no item is overlooked. You could design the best commercial kitchen in the world, perfectly configured for your exact needs. In some states, local regulations may determine your commercial kitchen's layout or design elements. Additionally, if you're looking for examples of how you can lay out your kitchen, you can find some sample layouts and templates. Our kitchen site survey will mda sanitarian.
Kitchen Layout Blueprint High Res Stock Images Shutterstock from image.shutterstock.com 25 197 просмотров 25 тыс. You could design the best commercial kitchen in the world, perfectly configured for your exact needs. Start with the exact blueprint design you need—not just a blank screen. Regardless of what type of foodservice establishment you have, there are several objectives for designing a kitchen properly. Commercial kitchen planning and design considerations commercial kitchen for a kitchen layouts and design preparing the best satifisfied layouting. 829 x 743 jpeg 93 кб. Consumate kitchen layouts and design 13321 hallmark news p3 kitchen layouts and design beautiful kitchen layout concept detailed. 1057 x 881 jpeg 132 кб.
Create blueprints, floor plans, layouts and more from templates in minutes with smartdraw's easy smartdraw's blueprint maker is much easier to use than traditional cad software costing many times more.
25 197 просмотров 25 тыс. How to design kitchen pantry | architect. Create electrical schematics, landscaping plans or design visuals. Commercial kitchen layout examples | home decorators. Additionally, if you're looking for examples of how you can lay out your kitchen, you can find some sample layouts and templates. Consumate kitchen layouts and design 13321 hallmark news p3 kitchen layouts and design beautiful kitchen layout concept detailed. The blueprints and drawings of the internal installations and the external dimensions have to be approved by the authorities. 1057 x 881 jpeg 132 кб. Small kitchen design layout ideas. Commercial kitchen design « morooms commercial kitchen design blueprints of restaurant kitchen designs restaurant kitchen design commercial floorplan: You should also take your staff's. The commercial kitchen design and layout services at mise designs are the perfect solution for your production cooking needs. Large kitchen with all equipment, commercial kitchen fantastic commercial kitchen design layout | storyblog.
Commercial kitchen design software for mac. It's very easy, quick and convenient to draw the professional looking blueprints in conceptdraw diagram diagramming and vector drawing software. Consumate kitchen layouts and design 13321 hallmark news p3 kitchen layouts and design beautiful kitchen layout concept detailed. 25 197 просмотров 25 тыс. Small kitchen design layout ideas.
Kitchen Design Tool 12 Step User Guide Simply Stainless Stainless Steel from www.simplystainless.com Commercial kitchens prepare food to feed the masses, and we. Regardless of what type of foodservice establishment you have, there are several objectives for designing a kitchen properly. The blueprints and drawings of the internal installations and the external dimensions have to be approved by the authorities. Earlier the blueprints wer printed on the special paper and was blue. Find commercial kitchen flooring, design layouts, software and wall options, exhaust hoods, refrigeration resources, fire protection & more.call metrocrete. You could design the best commercial kitchen in the world, perfectly configured for your exact needs. Additionally, if you're looking for examples of how you can lay out your kitchen, you can find some sample layouts and templates. Intro to commercial kitchen design.
Large kitchen with all equipment, commercial kitchen fantastic commercial kitchen design layout | storyblog.
Intro to commercial kitchen design. It is necessary to have a printed list of the same with you so that no item is overlooked. Start with the exact blueprint design you need—not just a blank screen. Small kitchen design layout ideas. We provide commercial kitchen layout & design services to restaurants, hotels, hospitals and more. Blueprints of restaurant kitchen designs. Earlier the blueprints wer printed on the special paper and was blue. Create blueprints, floor plans, layouts and more from templates in minutes with smartdraw's easy smartdraw's blueprint maker is much easier to use than traditional cad software costing many times more. Small commercial kitchen layout kitchen layout and decor ideas. Ideas contemporary modern kitchen furniture ideas colorful lime green kitchen design ideas which are bright restaurant kitchen layout. You should also take your staff's. Additionally, if you're looking for examples of how you can lay out your kitchen, you can find some sample layouts and templates. Commercial kitchens prepare food to feed the masses, and we.
This article discusses typical layouts used in kitchen designs, including the single wall kitchen, galley kitchen many designers consider this the most efficient plan, since the cook is surrounded on three sides by countertop, work centers, and storage areas. Additionally, if you're looking for examples of how you can lay out your kitchen, you can find some sample layouts and templates. Documents similar to intro to commercial kitchen design. Intro to commercial kitchen design. Start with the exact blueprint design you need—not just a blank screen.
5 Ergonomic Design Tips For A Safe And Functional Kitchen F B Report from fnbreport.ph Commercial kitchen layout & design services in charleston sc. We provide commercial kitchen layout & design services to restaurants, hotels, hospitals and more. Earlier the blueprints wer printed on the special paper and was blue. This article discusses typical layouts used in kitchen designs, including the single wall kitchen, galley kitchen many designers consider this the most efficient plan, since the cook is surrounded on three sides by countertop, work centers, and storage areas. How to design kitchen pantry | architect. Commercial kitchen planning and design considerations commercial kitchen for a kitchen layouts and design preparing the best satifisfied layouting. Ideas contemporary modern kitchen furniture ideas colorful lime green kitchen design ideas which are bright restaurant kitchen layout. You can also hire a professional designer to help you choose your kitchen equipment and where it.
1057 x 881 jpeg 132 кб.
You can also hire a professional designer to help you choose your kitchen equipment and where it. Find commercial kitchen flooring, design layouts, software and wall options, exhaust hoods, refrigeration resources, fire protection & more.call metrocrete. We provide commercial kitchen layout & design services to restaurants, hotels, hospitals and more. Professional kitchen layout | kitchen layout and decor ideas. Create blueprints, floor plans, layouts and more from templates in minutes with smartdraw's easy smartdraw's blueprint maker is much easier to use than traditional cad software costing many times more. Small kitchen design layout ideas. Print detailed blueprints with ease. The commercial kitchen design and layout services at mise designs are the perfect solution for your production cooking needs. .kitchen design blue print « kitchen design ideas blueprints of restaurant kitchen how to design a small commercial kitchen | chron. How to design kitchen pantry | architect. 829 x 743 jpeg 93 кб. Commercial kitchen layout examples | home decorators. Start with the exact blueprint design you need—not just a blank screen.
Production GM vehicles rely on the PCM to provide signal outputs to control the engine, gauges, electric fans, emissions equipment, air conditioning, and other equipment.s This Tech Tip is From the Full Book, HOW TO USE AND UPGRADE TO GM GEN III LS-SERIES POWERTRAIN CONTROL SYSTEMS. For a comprehensive guide on this entire subject you can visit this link: LEARN MORE ABOUT THIS BOOK HERE SHARE THIS ARTICLE: Please feel free to share this article on Facebook, in Forums, or with any Clubs you participate in. You can copy and paste this link to share: https://lsenginediy.com/upgrading-gen-iii-ls-series-pcm-signal-output-guide/ Production GM vehicles rely on the PCM to provide signal outputs to control the engine, gauges, electric fans, emissions equipment, ...
Kitchen Utensils Names In Hindi And English With Pictures / 90 Kitchen Utensil Set Ideas Kitchen Utensil Set Utensil Set Kitchen Essentials List - 100+ kitchen tools, utensils and appliances names list with images and pictures. . Kitchen utensils with pictures vocabulary in hindi urdu the list of names kitchen items in english common kitchen utensils vocabulary household use things kitchen items name in english and hindi रस ई स म न क. They are used to chop and slice food, measure and blend or cook and bake. 100+ kitchen tools, utensils and appliances names list with images and pictures. The kitchen utensil names in hindi and the uses of the kitchen items will help you decide which things in the kitchen you need to begin with. You need three things to cook and they are fresh ingredients, simple techniques and cooking tools. We all use different kinds of items in our kitchens. These words are used in our daily routine speaking and writings. 30+ kitchen items name in hi...
Fuses and relay Honda Accord 1998-2003 For the Honda Accord 1998, 1999, 2000, 2001, 2002, 2003 model year. Fuse box located. Engine bay. The under-hood fuse box is located in the back of the engine compartment on the passenger's side. To open it, push the tabs. fuse box diagram. legend. R1 Headlamp relay – RH R2 ...
Komentar
Posting Komentar